Trilocale in vendita

Parma, Via Roma - Vicofertile
€ 130.000
3 locali 3 locali
83 Mq 83 Mq
1 bagno 1 bagno

Trilocale in vendita

Parma, Via Roma - Vicofertile

Descrizione annuncio

VIA ROMA- VICOFERTILE

Il fascino di vivere in un antico molino sulla via francigena immerso nel verde.

Per chi ama la tranquillità della campagna senza rinunciare alla comodità della città, proponiamo in vendita un luminoso appartamento di 83 mq, situato al primo piano di un piccolo condominio ricavato dal recupero di un antico molino.

L’edificio ristrutturato nel 1980 è composto da poche unità abitative offrendo così un contesto riservato e piacevole.

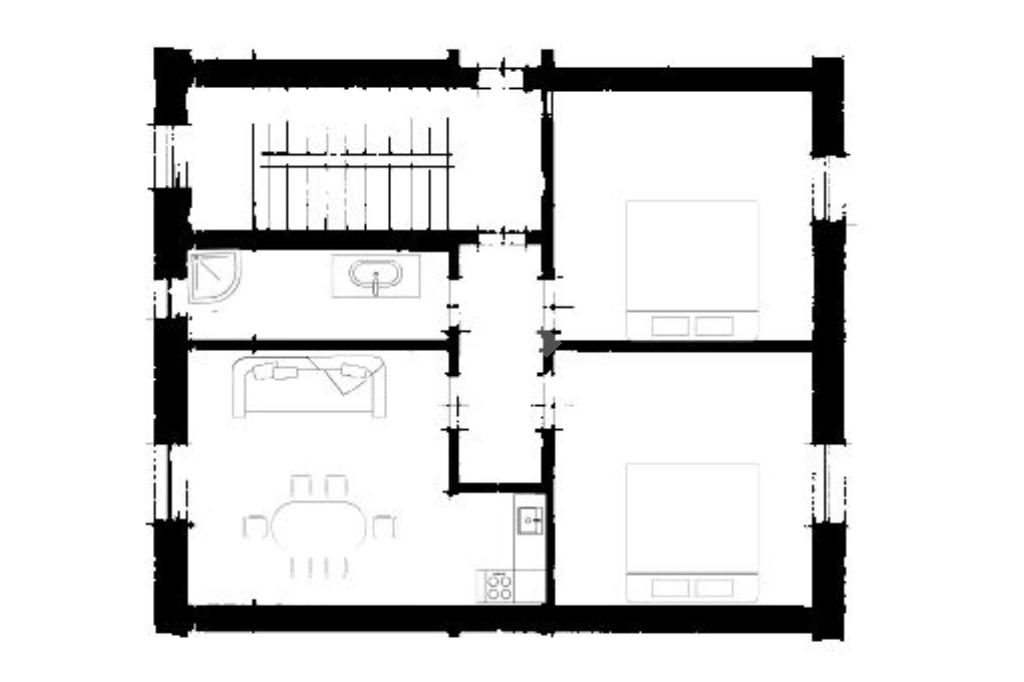
L’appartamento si compone da spazi ampi e ben distribuiti. Ingresso, soggiorno luminoso con angolo cottura, due camere matrimoniali e un bagno con finestra.

Tra le dotazioni troviamo il riscaldamento autonomo, infissi in legno con doppio vetro e zanzariere.

Completano la proprietà un ampio solaio, una cantina grande e un posto auto condominiale con accesso da strada privata.

IDEALE ANCHE AD USO INVESTIMENTO E PER CHI CERCA UN APPARTAMENTO IN ZONA VERDE, TRANQUILLA E SERVITA, A SOLI POCHI MINUTI DA PARMA.

Per ulteriori informazioni e per fissare una visita contattare PABLO SPINOSA al 320.7763250 oppure al 0521.063620

Mostra tutto

Nelle vicinanze

Trasporto pubblico Trasporto pubblico
Vicofertile
Vicofertile
280 m
Trasporto pubblico
1,7 Km
Ricariche auto elettriche Ricariche auto elettriche
LIDL Parma Via La Spezia
2,9 Km
Scuole Scuole
Nido e Scuola d'Infanzia Terramare
880 m
Supermercati Supermercati
Lidl
2,9 Km
Ristoranti Ristoranti
Ristoranti
670 m
La Zagara
1,7 Km
Aquaria
1,7 Km
Al Faro
1,9 Km
Da Antonio
1,9 Km
Mostra tutto

Caratteristiche

Rif.:
61118946
Piano:
1 di 3 (Piano basso)
Posti auto:
1
Camere da letto:
2
Arredamento:
Completo
Condizionamento:
Assente
Mostra tutto
Prezzo Prezzo
€ 130.000
Rata mutuo Rata mutuo
€ 601 / mese
Spese annue Spese annue
€ 400
Proponi il tuo prezzoProponi il tuo prezzo

Classe Energetica

F
F
F
F
F
F
F
F
F
EP globale non rinnovabile:
159.63 kW h/m² anno
EP globale rinnovabile:
53.44 kW h/m² anno
EP invernale del fabbricato:
EP estiva del fabbricato:
Anno di costruzione:
1980
Riscaldamento:
Autonomo
Tipo impianto:
A radiatori
Tipo alimentazione:
Metano

Ti interessa visionare l'immobile?

Fissa un appuntamento  Fissa un appuntamento

Richiedi informazioni

* Questi campi sono obbligatori

Calcola il tuo mutuo

Semplice e senza impegno
Anticipo

( % )
Mutuo

( % )

pochi semplici passi

inserisci i tuoi dati
Questionario completato
Grazie per aver richiesto un appuntamento senza impegno con un nostro Consulente del Credito e Assicurativo.

Hai inserito correttamente tutti i dati necessari e a breve riceverai una e-mail con un link da convalidare per inviare i tuoi dati.
Affiliato
Svolta Immobiliare Srl
Viale Dei Mille, 88 43100 Parma (PR)

Il nostro staff


  • Claudio De Pasquale
    Affiliato

  • Filippo Natalino
    Affiliato

  • Giuseppe Pangallo
    Collaboratore

  • Fabio Quaranta
    Collaboratore

  • Juan Pablo Spinosa
    Collaboratore
Viale Dei Mille, 88 43100 Parma (PR)
Zona: De Sica-Fermi-Fleming-Volturno-Jenner-Dei Mille-Vicofertile-Oltretorrente
Mostra su mappa
Orari: Dal lunedì al venerdì 9/13 - 15/19.00, Sabato dalle 9 alle 17. Altri orari su appuntamento.
Affiliato
Svolta Immobiliare Srl
Viale Dei Mille, 88 43100 Parma (PR)

2025 Tecnocasa Franchising S.p.A. - P. IVA 08365160152 - Via Monte Bianco 60/A 20089 Rozzano (MI). Ogni agenzia ha un proprio titolare ed è autonoma. Privacy policy | Policy utilizzo | Cookie policy