Bilocale in vendita

Parma, Via Edmondo de Amicis - Volturno
€ 200.000
2 locali 2 locali
46 Mq 46 Mq
1 bagno 1 bagno

Bilocale in vendita

Parma, Via Edmondo de Amicis - Volturno

Descrizione annuncio

VIA DE AMICIS - OSPEDALE MAGGIORE

In una laterale privata di Via Abbeveratoia proponiamo bilocale al primo piano impianti ad alta efficenza energetica.

Ubicato a ridosso dell'ospedale Maggiore in zona centrale e tranquilla, comoda a tutti i servizi offerti quali supermercati, farmacie, scuole, fermate mezzi pubblici, ecc. Il centro di Parma è comodamente raggiungibile a piedi, in bicicletta e tramite i mezzi pubblici.

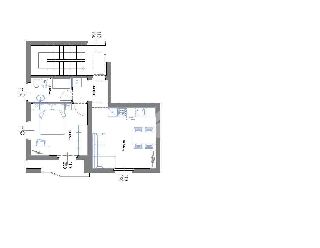
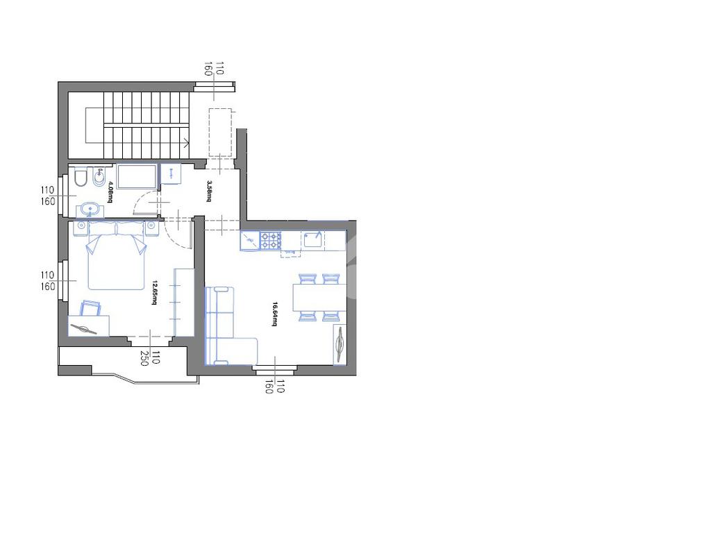
L'appartamento è disposto con ingresso, soggiorno con angolo cottura, una camera da letto, balcone e bagno finestrato.

Completano l'immobile una cantina e un'ampia porzione di sottotetto in proprietà.

Lo stabile è stato oggetto di un completo restyling con tetto impermeabilizzato e tegole sostituite, cappotto termico, balconi in vetro.

Approfitta delle detrazioni fiscali!
Acquistando entro il 31/12/2026, puoi portare in detrazione il 50% di 70.000,00 euro secondo quanto previsto dalle normative vigenti.

L'appartamento realizzato con materiali e finiture di pregio consultabili in ufficio.

E' dotato di riscaldamento/raffrescamento a pavimento, isolamento termico e acustico e trattamento dell'aria canalizzato.


E' previsto un capitolato dei lavori per finiture personalizzabili anche nella gestione degli spazi interni, pavimenti in grès porcellanato e/o parquet, sistemi oscuranti motorizzati, sanitari a filo muro,predisposizione per impianto fotovoltaico privato.

La consegna degli edifici è prevista per MAGGIO 2026.

Mostra tutto

Nelle vicinanze

Trasporto pubblico Trasporto pubblico
stazione di Parma
stazione di Parma
2,2 Km
Trasporto pubblico
310 m
Viale dei Mille via Musini
Viale dei Mille via Musini
630 m
Ricariche auto elettriche Ricariche auto elettriche
Eneldrive Ospedale Maggiore
440 m
Eneldrive Vittoria
660 m
IrenGo Dipartimento di Economia
1,2 Km
Concessionario Nissan Auto & Auto Parma
1,2 Km
IrenGo Istituto Comprensivo Parmigianino
1,2 Km
Scuole Scuole
Università di Parma - Facoltà di Medicina e Chirurgia
210 m
Istituto Comprensivo Statale G. Ferrari
450 m
Scuole
480 m
Università degli Studi di Parma
1,1 Km
Forma Futuro
1,1 Km
Farmacia Farmacia
Farmacia Volturno
150 m
Farmacia SS Annunziata
920 m
Parafarmacia Ducale
990 m
Parafarmacia Oltre Torrente Dott. Martinelli
1,0 Km
Farmacia Pezzena
1,2 Km
Ospedali Ospedali
Pronto Soccorso
220 m
Punto Bianco
320 m
Ospedale Maggiore Parma
390 m
Guardia Medica
450 m
Pronto Soccorso Pediatrico
760 m
Supermercati Supermercati
CONAD
370 m
Panorama
420 m
Sigma
660 m
Coop
870 m
Carrefour Express
1,2 Km
Negozi Negozi
Alimentari Submarinos
860 m
Forno
940 m
Da Rihari
940 m
Humus
940 m
Eredi Dalcò
980 m
Bar Bar
Bar
340 m
Bar Merlino
480 m
Gastronomico
710 m
Spumanteria Vittoria
710 m
Bar Topino
790 m
Ristoranti Ristoranti
Ristoranti
210 m
Il Polipo Marino
680 m
Pizza Fantasy
700 m
Shibuya
790 m
Ristorante Cocchi
850 m
Mostra tutto

Caratteristiche

Rif.:
61208560
Piano:
1 di 2 (ultimo Piano)
Balconi:
1
Camere da letto:
1
Arredamento:
Assente
Condizionamento:
Autonomo
Mostra tutto
Prezzo Prezzo
€ 200.000
Rata mutuo Rata mutuo
€ 949 / mese
Spese annue Spese annue
€ 0
Proponi il tuo prezzoProponi il tuo prezzo

Classe Energetica

A4
A4
A4
A4
A4
A4
A4
A4
A4
EP globale non rinnovabile:
13.17 kW h/m² anno
EP globale rinnovabile:
53.44 kW h/m² anno
EP invernale del fabbricato:
EP estiva del fabbricato:
Anno di costruzione:
1970
Riscaldamento:
Autonomo
Tipo impianto:
A pavimento
Tipo alimentazione:
Altro

Ti interessa visionare l'immobile?

Fissa un appuntamento  Fissa un appuntamento

Richiedi informazioni

Clicca su Leggi per aprire l'informativa
* Questi campi sono obbligatori

Calcola il tuo mutuo

Semplice e senza impegno
Anticipo

( % )
Mutuo

( % )

pochi semplici passi

inserisci i tuoi dati
Questionario completato
Grazie per aver richiesto un appuntamento senza impegno con un nostro Consulente del Credito e Assicurativo.

Hai inserito correttamente tutti i dati necessari e a breve riceverai una e-mail con un link da convalidare per inviare i tuoi dati.
Affiliato
Svolta Immobiliare Srl
Viale Dei Mille, 88 43100 Parma (PR)

Il nostro staff


  • Claudio De Pasquale
    Affiliato

  • Sonia De Padova
    Coordinatrice

  • Salma El Haroui
    Collaboratrice

  • Giuseppe Pangallo
    Collaboratore

  • Fabio Quaranta
    Collaboratore
Viale Dei Mille, 88 43100 Parma (PR)
Zona: De Sica-Fermi-Fleming-Volturno-Jenner-Dei Mille-Vicofertile-Oltretorrente
Mostra su mappa
Orari: Dal lunedì al venerdì 9/13 - 15/19.00, Sabato dalle 9 alle 17. Altri orari su appuntamento.
Affiliato
Svolta Immobiliare Srl
Viale Dei Mille, 88 43100 Parma (PR)

2026 Tecnocasa Franchising S.p.A. - P. IVA 08365160152 - Via Monte Bianco 60/A 20089 Rozzano (MI). Ogni agenzia ha un proprio titolare ed è autonoma. Privacy policy | Policy utilizzo | Cookie policy